Euro-Fences

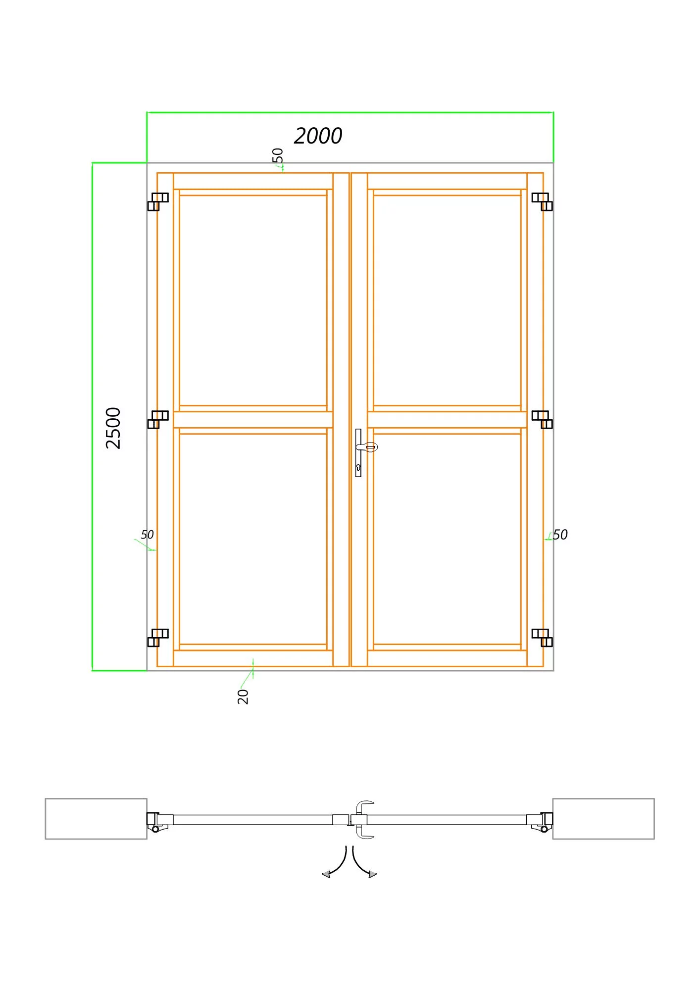
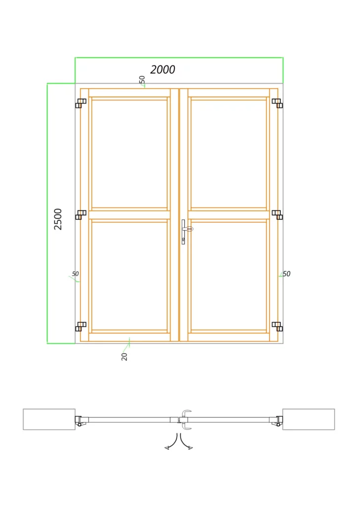
DRZWI PRZEMYSŁOWE

Solidna konstrukcja, łatwa obsługa i wysoka trwałość sprawiają, że nasze drzwi są doskonałym wyborem dla każdego przedsiębiorstwa. Zainwestuj w bezpieczeństwo i efektywność już dziś!

Przewijanie do góry